Фильтры патронные типа ФПИ
Приобретайте аналогичные фильтры патронные FPI
Фильтры патронные с импульсной продувкой типа ФПИ предназначены для высокоэффективной очистки воздуха (газов) от всех видов пылей (в т.ч. мелкодисперсных твердых аэрозолей) при её концентрациях в очищаемом воздухе до 10 г/м3. При содержании пыли в очищаемом воздухе более 10 г/м3, перед фильтром рекомендуется устанавливать предварительную ступень очистки воздуха в виде простейших сухих пылеуловителей.
Фильтры типа ФПИ являются более эффективными фильтрами в сравнении с рукавными фильтрами и способны улавливать мелкодисперсные аэрозоли, образующиеся, например, в процессе плазменной или лазерной резки, сварки или других технологических процессах, связанных с образованием конденсационных аэрозолей.
В ряде случаев очищенной воздух может быть использован для рециркуляции с целью экономии тепла во время отопительного сезона.
Фильтры ФПИ выпускаются в виде типового ряда с производительностью от 2000 м3/ч до 32000 м3/ч.
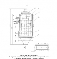
Производится фильтр ФПИ-2А с вентагрегатом, размещенным на крышке фильтра. Указанный фильтр в обоснованных случаях может осуществляться рециркуляцию очищенного воздуха, размещаясь непосредственно рядом с технологическим оборудованием, от которого производится удаление запыленного воздуха.
Фильтр ФПИ-2А должен устанавливаться с учетом максимального сопротивления аспирационной системы (сопротивление местного отсоса и сети воздуховодов) не более 400-500 Па.
Эффективность фильтров ФПИ со стандартными патронами для большинства видов пылей составляет, как правило, не менее 99,9%. Для улавливания мелкодисперсных аэрозолей (плазменная, лазерная резка металлов и т.п.) может быть использован высокоэффективный синтетический материал с эффективностью очистки не менее 99,9% в отношении частиц размером 0,5 – 1 мкм.
ОБЩЕЕ УСТРОЙСТВО
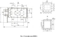
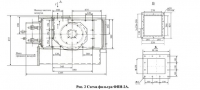
Фильтр состоит из корпуса, разделенного на камеры неочищенного и очищенного воздуха, фильтрующих элементов патронных типа ФЭП (в дальнейшем, в тексе – патрон), клапанной секции с управляющими электромагнитами и устройством управления регенерацией патронов.
Замена патронов осуществляется через боковую съемную панель, расположенную на стороне, противоположной стороне входа воздуха в фильтр.
Размещение входных и выходных патрубков возможно как с одной, так и с другой стороны фильтров.
Запыленный воздух через входной патрубок поступает в камеру, где расположены фильтрующие патроны. Проходя через фильтрующий материал патронов, пыль оседает на поверхности материала, а очищенный воздух удаляется через верхние открытые части патронов в камеру очищенного воздуха.
Регенерация фильтрующих патронов осуществляется периодически, по сигналу от датчика перепада давления входящего в стандартную комплектаци , без отключения фильтра. Регенерация проводится импульсной продувкой сжатым воздухом, поступающим внутрь патронов сверху через отверстия в продувочных коллекторах. Длительность импульсов и частота циклов регенерации устанавливаются с помощью прибора управления регенерацией, входящего в комплект поставки фильтра.
Сжатый воздух для регенерации патронов должен быть очищен не хуже 10 класса по ГОСТ 17433-80.
Для обеспечения нормальной работы фильтров, удаление пыли из бункеров, должно производиться, периодически или постоянно (в зависимости от начальной запыленности газа). Герметизация выгрузного отверстия, необходимая при выгрузке пыли в процессе работы фильтра, обеспечивается с помощью шлюзовых питателей (шлюзовых затворов). Возможна установка других герметизирующих устройств.
При работе фильтров с двумя и более бункерами могут применяться шнековые транспортеры (по отдельному заказу), осуществляющие опорожнение бункеров, а также выгрузку пыли в одной точке. Для герметизации шнекового транспортера, на его выгрузном отверстии необходимо установить шлюзовой затвор или другие герметизирующие устройства.
По заказу фильтр(ы) могут быть оснащены системой автоматики, включающей в себя:
- сигнализацию и защиту фильтров от повышенной температуры очищаемых газов;
- управление пылевыгрузными устройствами одного или нескольких фильтров.
Система автоматики имеет возможность передачи всей информации на верхний уровень для контроля и управления системой очистки воздуха в комплексе с технологией, которую она обслуживает.
По заказу фильтры могут изготавливаться с опорой. При заказе необходимо указываться расстояние от фланцев выгрузных отверстий до основания опоры.
Сопутствующие товары:
Фильтр
ФПИ – 2В – 252 000 руб. по состоянию на апрель 2013 года (справочная информация).
Цены указаны без учета стоимости фильтрующих патронных элементов ФЭП, шлюзового затвора и опор
| Наименование | Количество фильтров ФЭП | Ширина, мм | Высота, мм | Глубина, мм | Номинальная производительность, м3/ч | ... | Цена, руб. |
|---|---|---|---|---|---|---|---|
| ФПИ-2 | 2 | 722 | 420 | 1285 | 2000 | 190 877.00 | |
| ФПИ-2А | 2 | 872 | 2840 | 1285 | 2000 | 230 808.00 | |
| ФПИ-4 | 4 | 1300 | 2420 | 1135 | 4000 | 251 198.00 | |
| ФПИ-4А | 4 | 1300 | 2420 | 1135 | 4000 | 375 028.00 | |
| ФПИ-6 | 6 | 1300 | 2420 | 1600 | 6000 | 374 249.00 | |
| ФПИ-8 | 8 | 1300 | 2420 | 2084 | 8000 | 399 029.00 | |
| ФПИ-10 | 10 | 1450 | 2420 | 2550 | 10000 | 522 079.00 | |
| ФПИ-12 | 12 | 1450 | 2420 | 3035 | 12000 | 596 702.00 | |
| ФПИ-16 | 16 | 1450 | 2420 | 3985 | 16000 | 763 507.00 | |
| ФПИ-20 | 20 | 2916 | 2420 | 2550 | 20000 | 945 746.00 | |
| ФПИ-24 | 24 | 2916 | 2420 | 3000 | 24000 | 1 071 062.00 | |
| ФПИ-32 | 32 | 2916 | 2420 | 3950 | 32000 | 1 475 472.00 |



















